facebook twitter whatsapp email

Moderne Wohnhausanlage mit schönen Freibereichen

Moderne Reihenhäuser mit Balkonen und Garten bei sonnigem Wetter.
Moderne Stadthäuser mit Balkonen unter blauem Himmel.
  • Wohnverhältnis
    Miete
  • 2433 Margarethen am Moos
    Energiestraße 12
  • Bauträger
    Gewog Arthur Krupp
  • Fertigstellung
    Juni 2017
Eine Frau mit Brille lächelt in die Kamera vor einer weißen Ziegelwand.

Melanie Höltmann

Kundenberatung - Bestand

Tel.: +43 1 866 95 1433

m.hoeltmann@wiensued.at

Objektbeschreibung

Geförderte Mietwohnungen in Margarethen am Moos

Die „Gewog Arthur Krupp“ hat bei dem Projekt in der Energiestraße 12 insgesamt 6 Wohnungen, und zwar als 2- und 3-Zimmer-Wohnungen, in Größen von 45 bis 75 m², errichtet. Dazu kommen noch die schönen Balkone bzw. Terrassen und Gartenflächen von bis zu 65 m².

Alle Wohnungen verfügen über je ein Einlagerungsabteil im Erdgeschoß, für wohlige Wärme sorgt eine Fernwärmeheizung mit biogenen Brennstoffen.

Das angenehme Raumklima der Wohnungen wird durch die Ziegelbauweise, durch das Wärmedämmverbundsystem sowie die Komfortlüftung über Einzelraumlüfter erreicht. Und durch das extensive Gründach-System wird das Wohnhaus nicht nur in ästhetischer, sondern vor allem natürlich in ökologischer Hinsicht maßgeblich aufgewertet.

Ausstattung

  • Barrierefreier Zugang
  • Fußbodenheizung
  • Niedrigenergiestandard
  • Parkplätze
  • SAT-Anschluss
  • Zentrale Wärmepumpenanlage

Wohnangebot

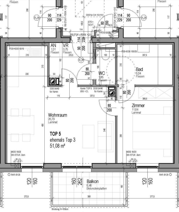
2 Zimmer - 51.08 m²

Top 5 – Dachgeschoßwohnung (1. Stock), kein Aufzug, Balkon ca. 6,46 m²

  • Finanzierungsbeitrag ca. € 9.570,--
  • Miete  ca. € 776,--

Downloads

GrundrissEnergieausweis